Строительство и реконструкция водооборотных циклов
Оформите заявку на услугу, мы свяжемся с вами в ближайшее время и ответим на все интересующие вопросы.
|
Заказать услугу
|
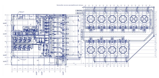
НПО «ЦВЭРТ» выполняет разработку проектной документации систем оборотного водоснабжения промышленных предприятий, а также осуществляет полный комплекс работ по строительству и реконструкции этих систем, включая поставку оборудования, монтаж (шефмонтаж, авторский надзор), пусконаладочные работы, обучение персонала, гарантийное и постгарантийное обслуживание.

В настоящее время остро стоит вопрос замены изношенного оборудования водооборотных циклов на предприятиях, на которых со времен СССР не производилось крупномасштабных модернизаций этих систем. Время диктует новые условия, поменялись требования к охлаждающей воде, изменилось потребление производственными подразделениями вследствие их реконструкции, стали предъявляться более строгие требования к сбросам и в целом, к использованию воды при минимизации вредного воздействия на окружающую среду. Предприятия, не занимающиеся модернизацией систем оборотного водоснабжения и очистки стоков, терпят существенные убытки по причине штрафов за ущерб, наносимый природе.
Мы предлагаем комплексный подход по модернизации водооборотных циклов – полный комплекс работ «под ключ», первым этапом которых является разработка проектов. Проектирование систем оборотного водоснабжения также предлагается компанией НПО «ЦВЭРТ», как отдельная работа.
НПО «ЦВЭРТ» имеет свой проектно-конструкторский отдел (ПКО), силами которого выполняются все этапы проектирования, а именно: разработка Проектной документации (согласно Постановления Правительства РФ №87 от 16.02.2008г. «О составе разделов проектной документации и требованиях к их содержанию»), сопровождение (организация проведения) Главгосэкспертизы проекта; выполнение Рабочей документации (РД) и сопровождение (организация проведения) Экспертизы Промышленной Безопасности.
НПО «ЦВЭРТ» является членом саморегулируемой организации «Межрегионального объединения проектных организаций специального строительства» СРО НП «МОПОСС» (при Спецстрое Росси), 01-П 2009.
НПО «ЦВЭРТ» является членом саморегулируемой организации «Ассоциация содействия реставрации и возрождению национального архитектурного наследия «Архитектурное наследие» (СРО-С-230-07092010).
Наша компания работает на постоянной основе с ведущими производителями насосного оборудования, градирен, и других комплектующих, применяемых при строительстве систем водооборота и очистки стоков.
Вы можете направить нам запрос по электронной почте npo_cvert@cvert.ru, наши специалисты свяжутся с Вами.
